In Kürze werden wir ein Einfamilienhaus im Eggepfad / Zehlendorf fertigstellen können.
Es handelt sich dabei um ein Doppelhaus von 1932, das im Rahmen des Siedlungsbaus der GAGFAH als Typenhaus erstellt wurde.

Für den Gebrauch einer Familie mit 3 Kindern galt es das Dachgeschoss auszubauen und die Wohnebene im Erdgeschoss durch einen Anbau zu erweitern.

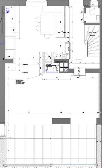
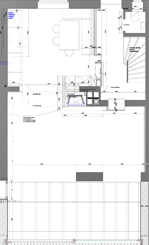
Die ursprüngliche Grundrissstruktur der Erdgeschossebene mit Küche, Essen und Wohnen wurde zu Gunsten eines fließenden großzügigen Raumempfindens radikal aufgebrochen.
Ein zentraler Baustein mit Kamin auf der einen Seite, Küchenmöbeln und Kühlschrank auf der anderen strukturiert den Wohn-, Lebens- und Kochbereich im Erdgeschoss.

Daran anschliessende Schiebetüren lassen eine flexible Nutzung der angrenzenden Räume zu.

Wir haben diese Schiebetüren wegen ihrer relativ großen Abmessungen mit Aluminiumrahmen vom Schlosser herstellen lassen, die nur noch vom Tischler mit MDF-Platten verkleidet, gespachtelt und gestrichen werden mussten. Wir empfehlen diese Bauart, da sich derart große Schiebeelemente als Holzrahmenkonstruktion leicht verziehen können.


